
Fiche détaillée
Modèle contemporain scandinave – Élégance et fonctionnalité
Découvrez ce modèle au design moderne et épuré, qui allie style scandinave, lumière naturelle et espaces fonctionnels. Parfait pour profiter d’un intérieur lumineux, de hauts plafonds, d’un garage pratique et de beaucoup de rangement.
Propriété disponible au printemps 2026
…
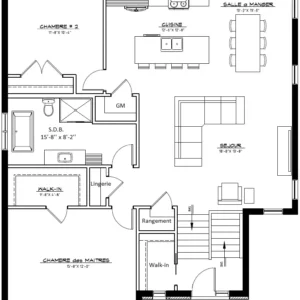
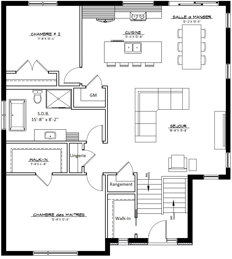
Caractéristiques générales
- Dimensions : 36′ x 40′-4″
- Superficie : 1 392 pi² au rez-de-chaussée + 1 012,18 pi² (sous-sol)
- Plafonds : 9′ au rez-de-chaussée, 8′ au sous-sol
- Chambres : 2 au rez-de-chaussée + 2 au sous-sol
- Salles de bain complètes : 1 au rez-de-chaussée + 1 au sous-sol
- Entrée : sur palier avec walk-in
- Configuration : aire ouverte et très éclairée
…
Cuisine et salles de bain
- Cuisine : grand îlot central 3’4’’ x 9’ avec 4 places assises, armoires en mélamine et polymère, comptoirs en quartz, évier double et robinetterie noire.
- Salle de bain principale : vanité en mélamine avec comptoir stratifié, douche vitrée 36″ x 60″ en céramique, bain autoportant.
- Coin café : espace dédié avec comptoir en quartz et rangement pratique.
…
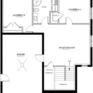
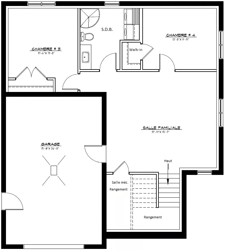
Garage
Dimensions : 17′ x 25′-8″ (≈ 439 pi²)
Intérieur fini en gypse, scellant sur dalle de béton
Porte de garage avec fenêtre vitrée
…
Sous-sol
- 2 chambres supplémentaires
- 1 salle de bain complète
- Grande salle familiale
- Espaces de rangement généreux
- Grandes fenêtres
…
Extérieur
- Revêtement en pierre et vinyle
- Fenêtres noires à l’extérieur / blanches à l’intérieur (soufflages PVC)
- Escalier avant en béton + rampes aluminium noir 42’’
- Galerie arrière 12′ x 12′ en bois traité + rampes aluminium noir 42’’
- Fondations : membrane Polyuréa giclée + drains rigides BNQ
…
Autres inclusions :
- Excavation et terrassement standard
- Sous-sol fini
- Plan d’implantation et localisation
- 10% de rabais sur luminaires et rideaux/stores*
*Certaines conditions s’appliquent.
Prix : 659 200,00 $ + taxes
Prix sujet à modification sans préavis. Frais de notaire exclus. Photos à titre indicatifs seulement.
Visite sur rendez-vous seulement
Prenez rendez-vous avec notre conseiller aux ventes.













